En Venta
UF 7 - DEPARTAMENTOS A ESTRENAR - VILLA GESELL
Código: 201462

Av. 2 & P.º 144, B7165 Villa Gesell, Provincia de Buenos Aires, Argentina, Villa Gesell, Buenos Aires, Argentina.

USD79.600

Departamento
Compartir esta Propiedad

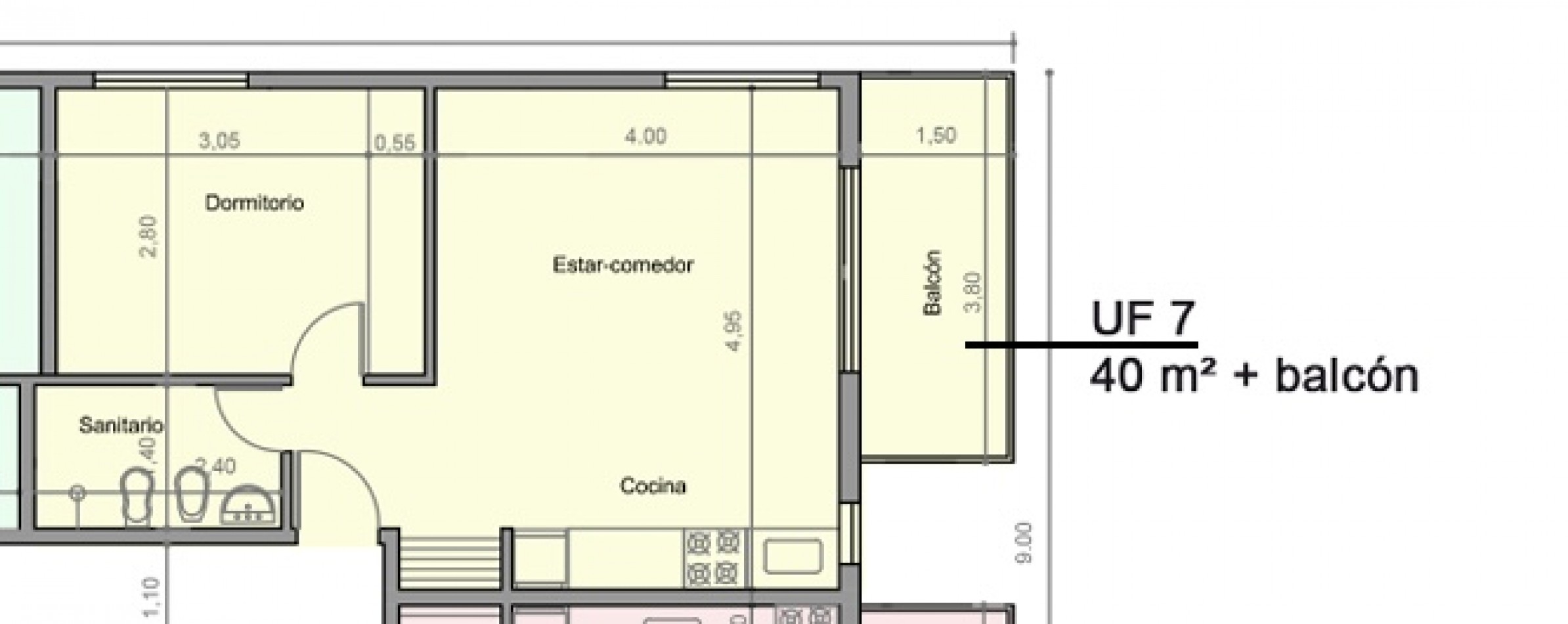
Descripción de la Propiedad

DEPARTAMENTOS A ESTRENAR
UBICADOS EN VILLA GESELL A PASOS DEL MAR - UNIDAD FUNCIONAL 7


Unidades de dos ambientes que ofrecen:
• Cocina integrada con mueble y mesada de granito.
• Dormitorio con frente de placard.
• Baño completo.
• Balcón con parrilla propia (se entrega sin herrajes).


Detalles de construcción
• todo el interior del edificio con yeso proyectado y guardacantos.
• Pisos de porcelanato 60x60
• Griferías monocomando.
• sanitarios piazza
• Cocina con mueble y mesada de granito.
• spots embutidos con leds en la cocina y baño.
• puertas con tableros crafmaster.
• ventanas de aluminio línea modena.
• Placard: frente corredizo melamina incluido.
• termotanque electrico.
• Instalación eléctrica preparada y prefactibilidad para gas natural (actualmente con conexión a garrafa).
• Parrilla con refactarios sin herrajes.
• se entrega con pintura completa.

INCLUYE COCHERA CUBIERTA

Toda la información y medidas provistas por el Agente Inmobiliario son aproximadas y podrán ratificarse con la documentación pertinente.

Mas detalles
  • balcon con parilla
  • Cochera con portón eléctrico