En Venta
CASA EN VILLAROBLES - BRISAS AL 100
Código: 204441

Provincia de Buenos Aires, Argentina, Pinamar, Buenos Aires, Argentina.

USD460.000

Casa
Compartir esta Propiedad

Descripción de la Propiedad

Casa a estrenar en Villa Robles – Barrio Brisas | A 200 metros del mar

Moderna propiedad ubicada en un entorno tranquilo y natural, a tan solo 200 metros del mar, ideal para quienes buscan confort, diseño y cercanía con la playa.
Desarrollada en dos plantas sobre un lote de 950 m², cuenta con una superficie de:
• 187 m² cubiertos
• 94 m² semicubiertos
Su distribución es funcional y luminosa, pensada para disfrutar cada espacio.

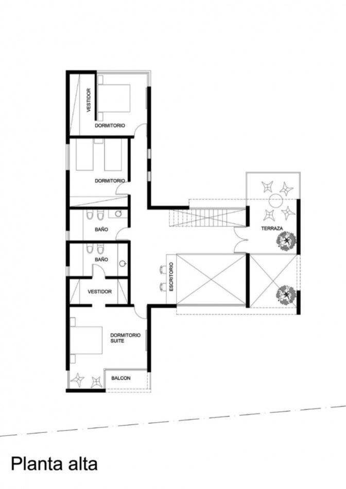
Planta baja:
Ingreso semicubierto, amplio living con doble altura que brinda gran luminosidad, toilette de recepción, cocina integrada y comedor.
En el exterior se encuentra el quincho con parrilla y toilette, perfecto para reuniones sociales.
La propiedad dispone además de piscina y cochera semicubierta para dos vehículos.

Planta alta:
Dos dormitorios con baño completo compartido y un tercer dormitorio en suite con baño privado y balcón.
Completa esta planta una terraza de uso común.


Una propuesta moderna y cómoda, a pasos del mar, ideal tanto para vivienda permanente como para casa de descanso.

NOTA: La información y fotos contenidas en el presente aviso son únicamente a título informativo, la apreciación de las propiedades es subjetiva y personal de los interesados. Las medidas provistas son aproximadas.
Los valores pueden actualizarse sin previo aviso

Mas detalles
  • Agua Corriente
  • Electricidad